BORrie !
RENOVATION AND TRANSFORMATION OF A HOUSE IN JETTE​​​​​​​
Hart Merel
Hart Merel
Van de Velde Tim
Van de Velde Tim
Van de Velde Tim
Van de Velde Tim
Van de Velde Tim
Van de Velde Tim
Van de Velde Tim
Van de Velde Tim
Van de Velde Tim
Van de Velde Tim
Van de Velde Tim
Van de Velde Tim
Van de Velde Tim
Van de Velde Tim
Van de Velde Tim
Van de Velde Tim
+0
+0
+1
+1
+2
+2
+3
+3
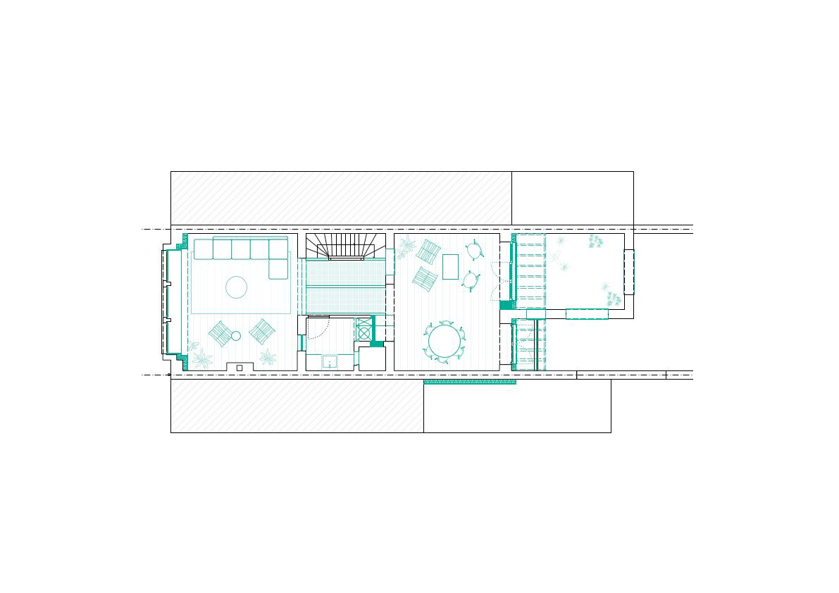
+3
+3
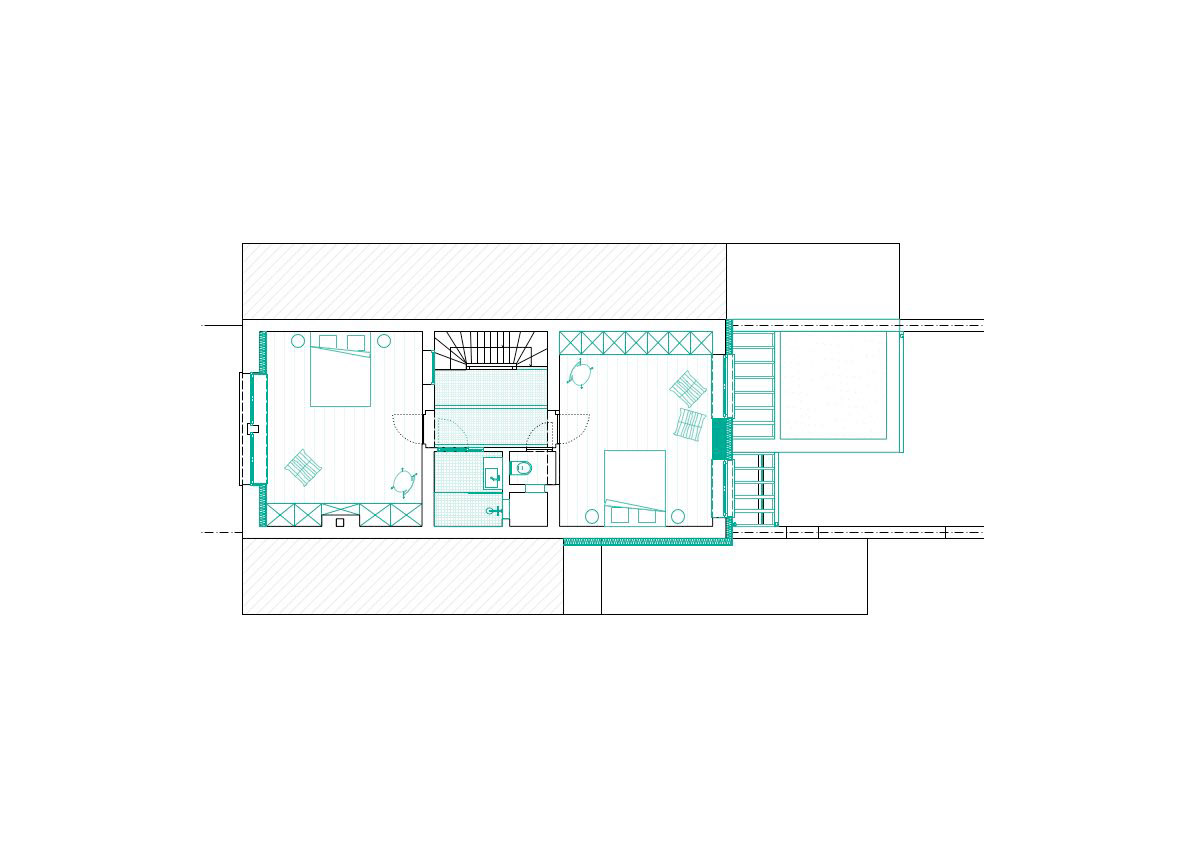
roof
roof
Back to Top