Projects
About
Contact
Projects
About
Contact
MOORSLEDE !
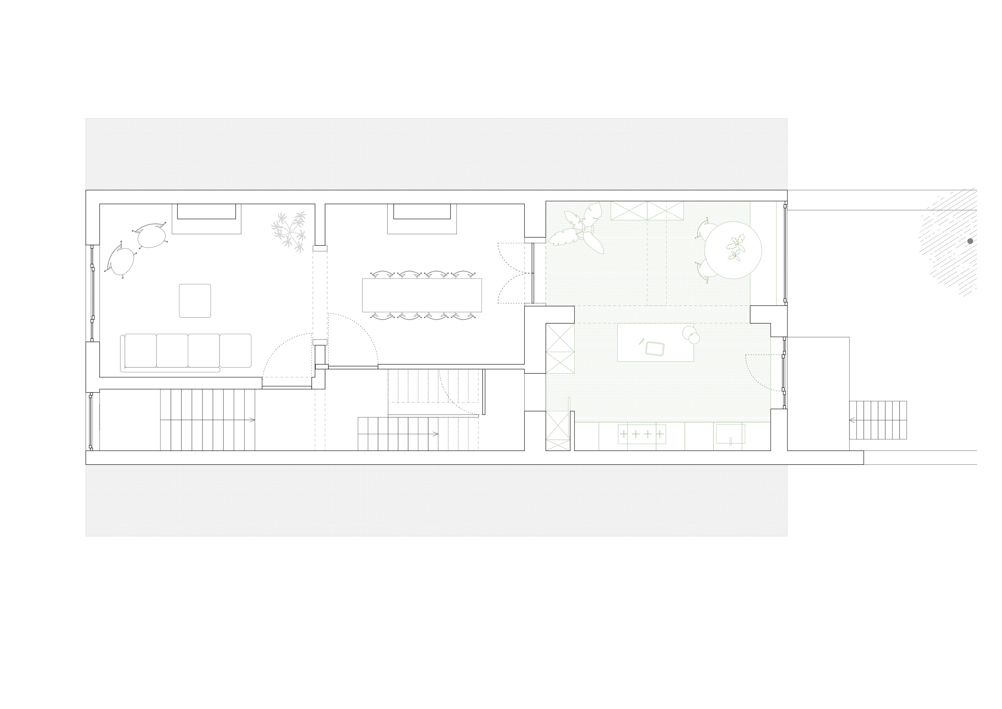
renovation of an apartment in laeken
Pictures by Andrea Anoni
Anoni Andrea
Anoni Andrea
Anoni Andrea
Anoni Andrea
↑
Back to Top