Projects
About
Contact
Projects
About
Contact
karper !
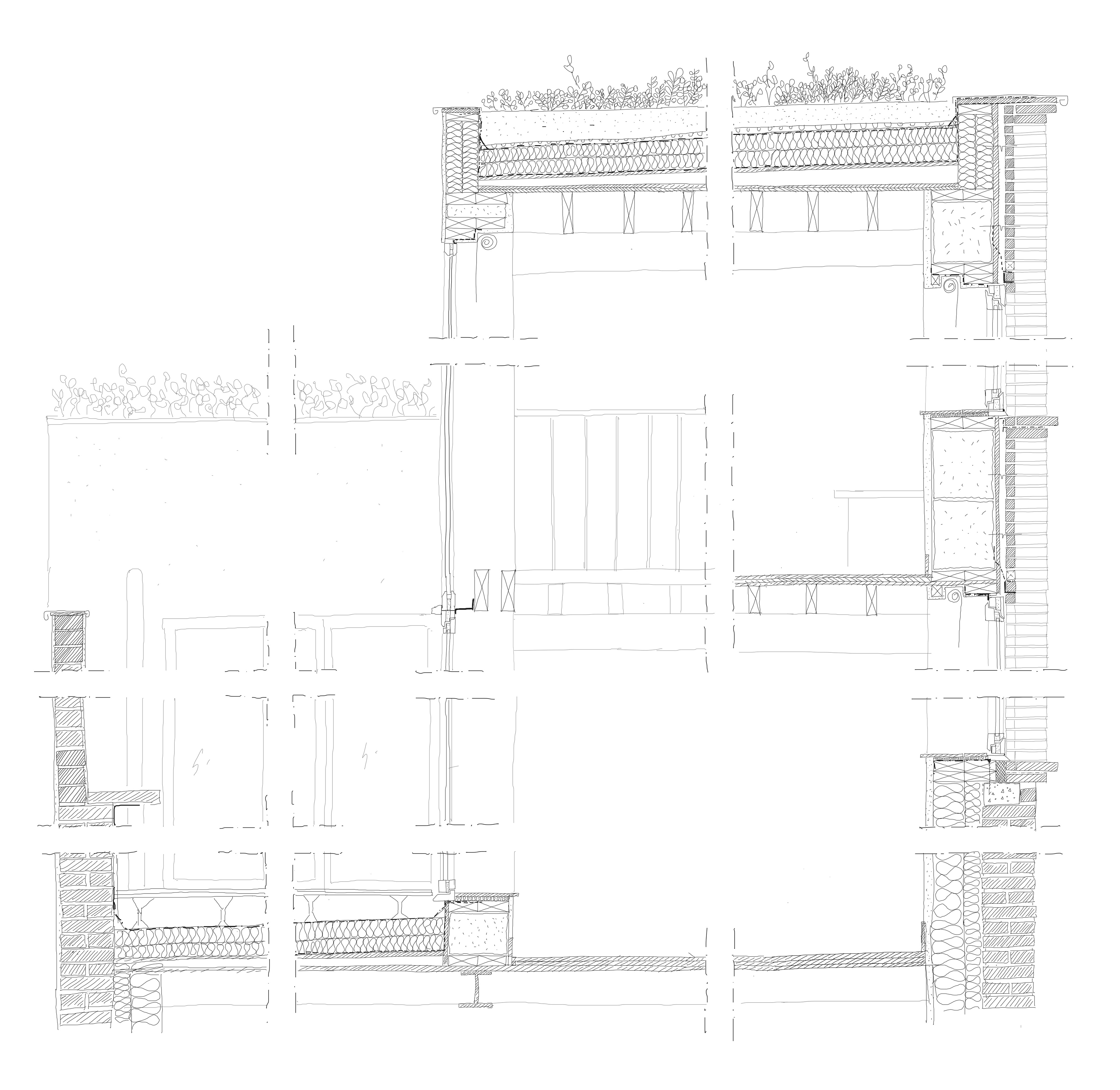
Renovation of a hOuse with rooftop extension in molenbeek
(330m²)
Van de Velde Tim
Van de Velde Tim
Van de Velde Tim
Van de Velde Tim
Van de Velde Tim
Van de Velde Tim
Van de Velde Tim
before/after
before/after
before/after
↑
Back to Top