Projects
About
Contact
Projects
About
Contact
HERREWEGE !
Renovation of a town house
pictures by Tim van de Velde
Tim van de Velde
Tim van de Velde
Tim van de Velde
Tim van de Velde
Tim van de Velde
Tim van de Velde
Tim van de Velde
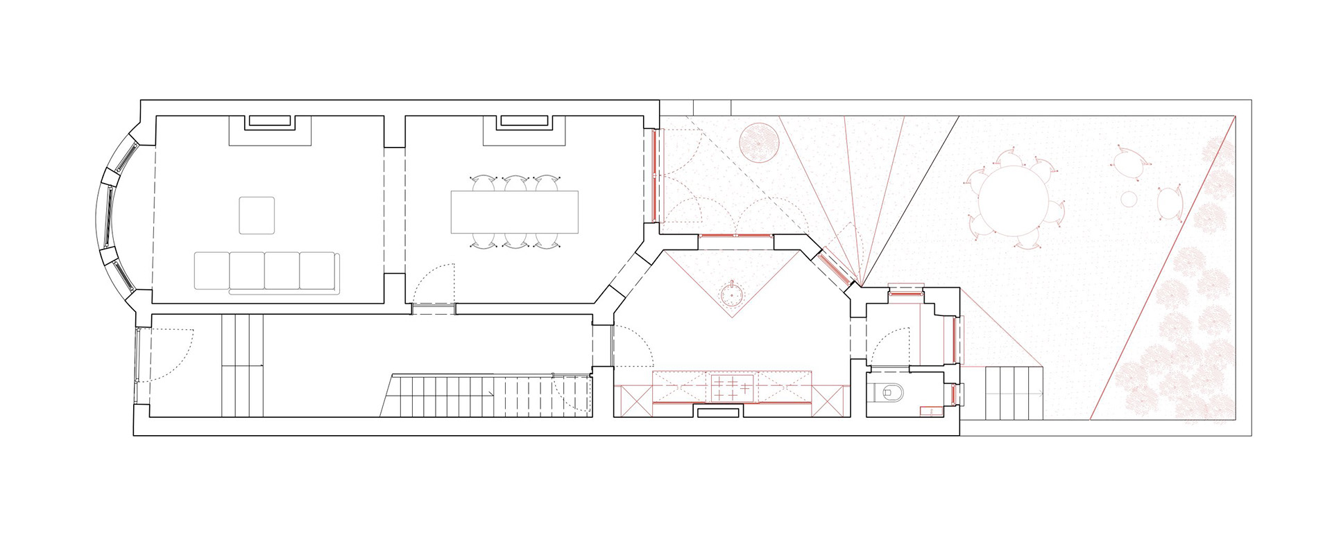
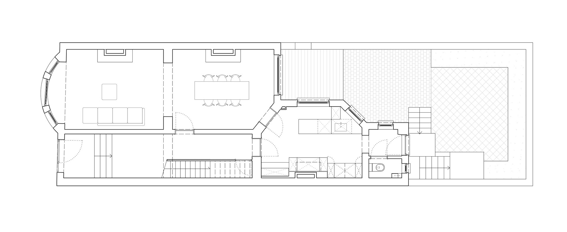
Before / After. Level 0
↑
Back to Top