Projects
About
Contact
Projects
About
Contact
GROEN !
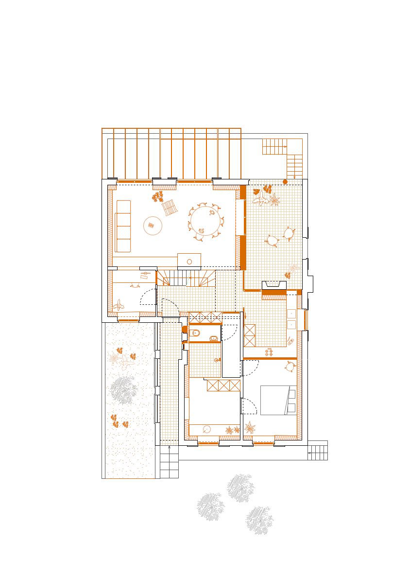
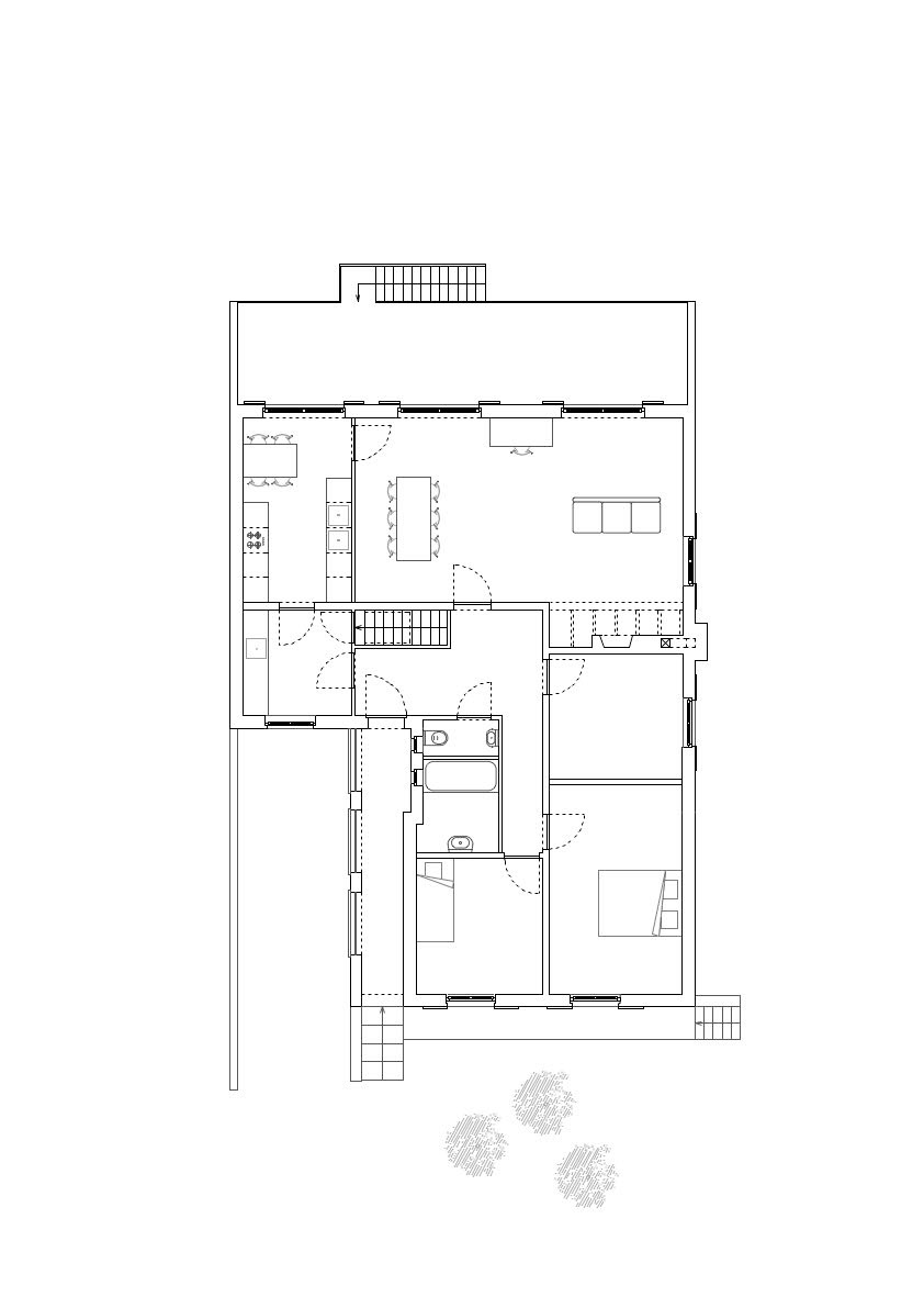
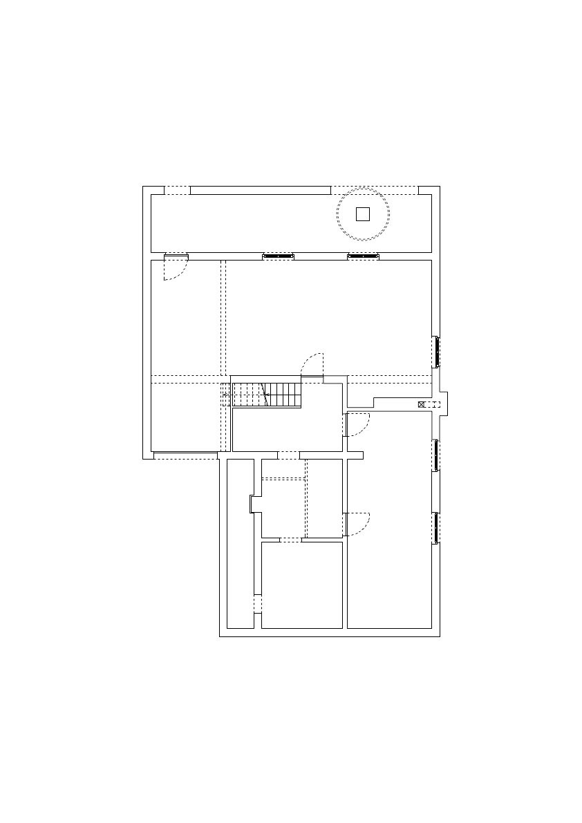
RENOVATION AND TRANSFORMATION OF A HOUSE IN EVERBERG
Hart Merel
Hart Merel
Hart Merel
Hart Merel
Hart Merel
before / after -1
before / after +0
before / after +1
before / after roof
↑
Back to Top