Projects
About
Contact
Projects
About
Contact
BOUGIE !
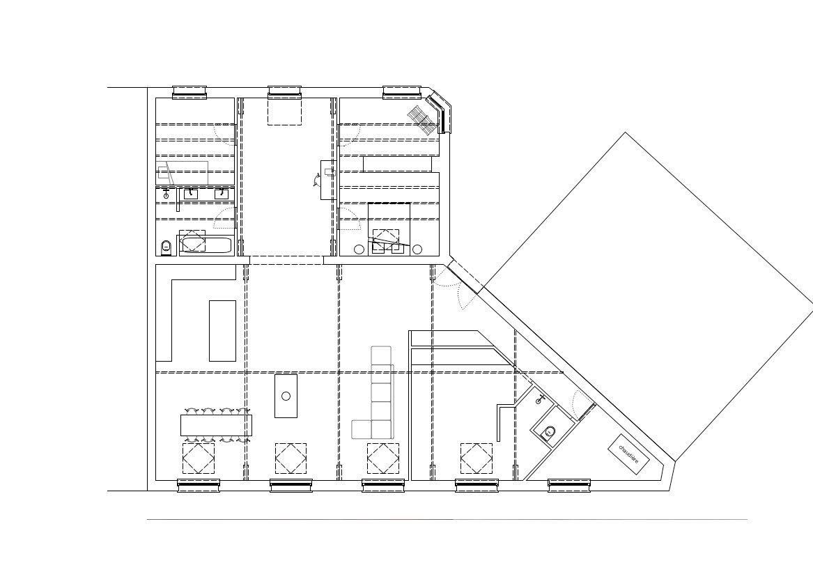
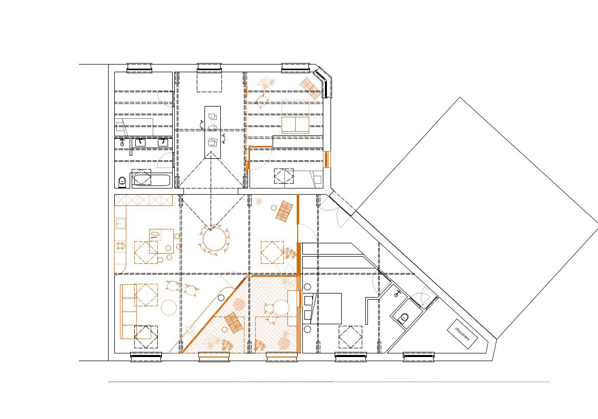
addition of an indoor terrace in an apartment in Anderlecht
Hart Merel
Hart Merel
Hart Merel
before / after
before / after
↑
Back to Top