Projects
About
Contact
Projects
About
Contact
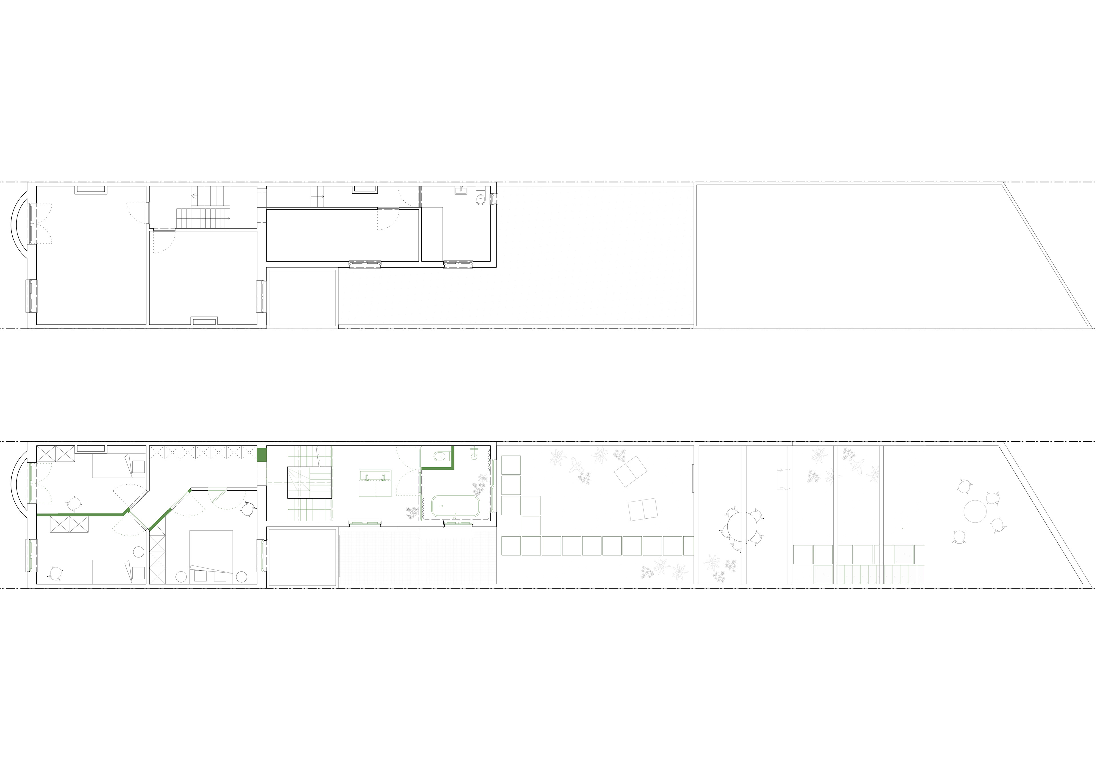
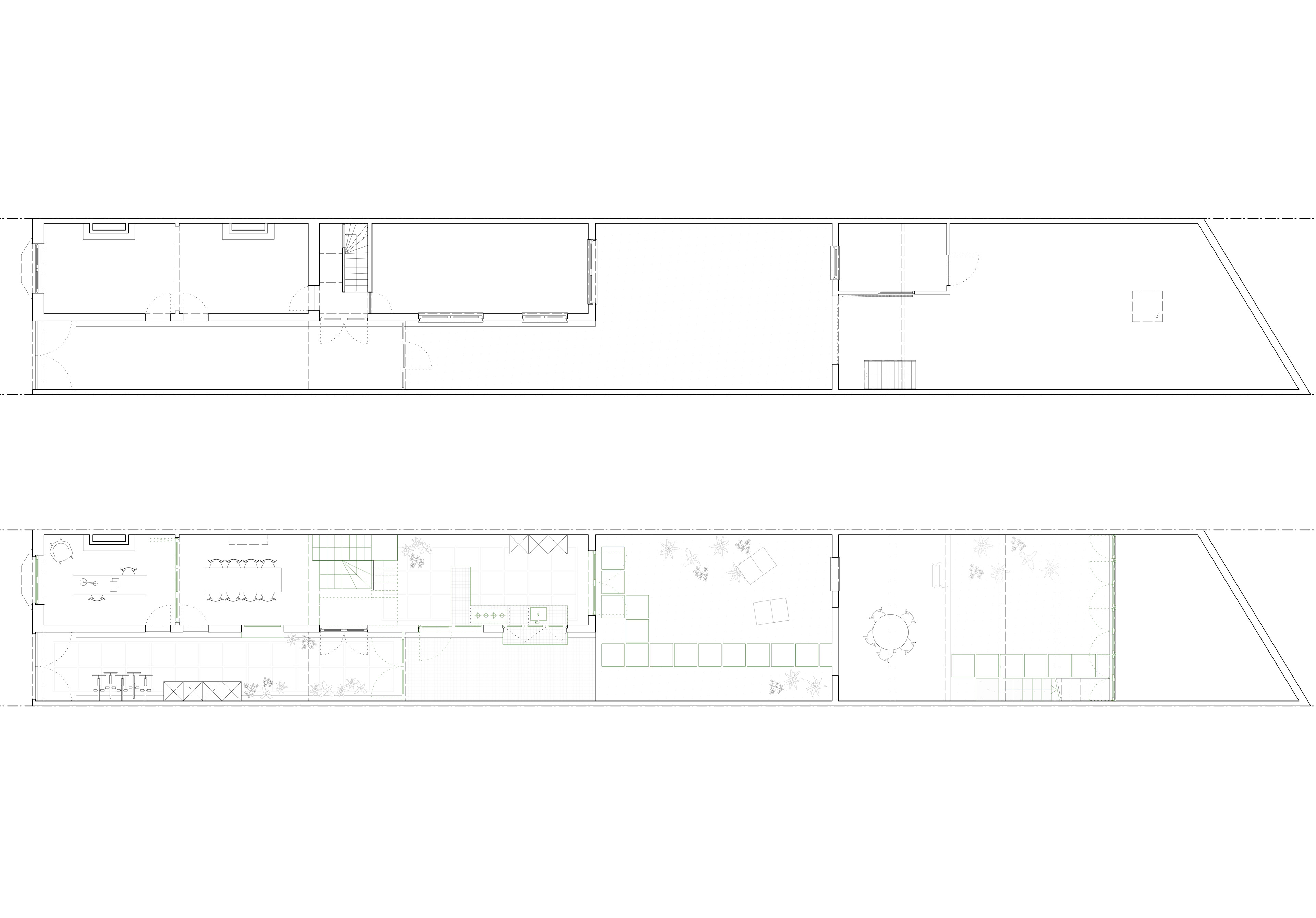
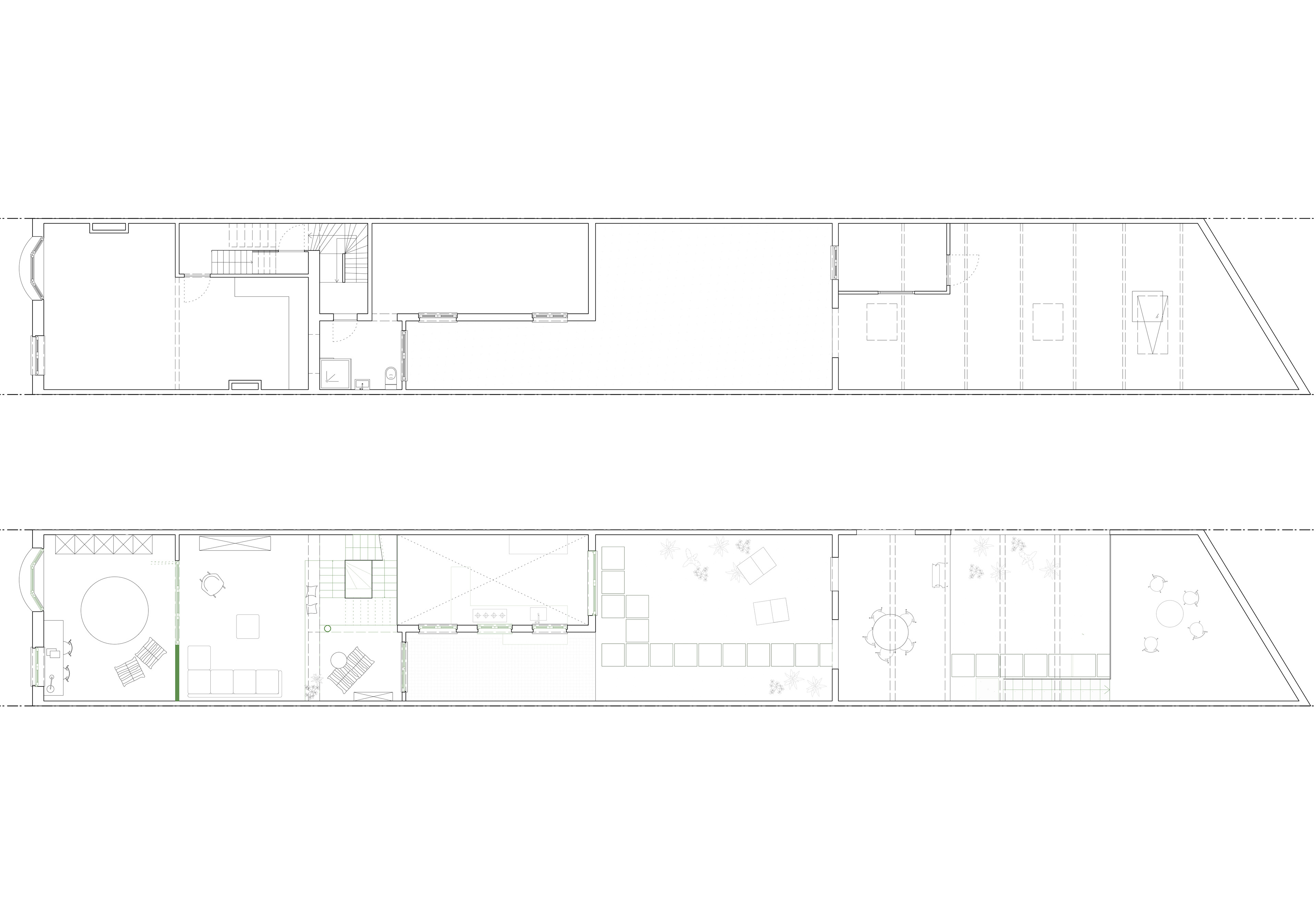
BOE!
Renovation of a townhouse with rear workshop into a single-family house.
Level 0_ Before/After
Level +1_ Before/After
Level +2_ Before/After
Level +3_ Before/After
↑
Back to Top